Concesionaria Mercedes Benz – PTE 12
Proyecto y Dirección de Obra.
Superficie total: 5280 m²
Año de finalización: 2021

Un ambicioso proyecto de renovar, reestructurar y alinear la imagen existente de la concesionaria Cigliutti Guerini con los parámetros internacionales MAR 2020.
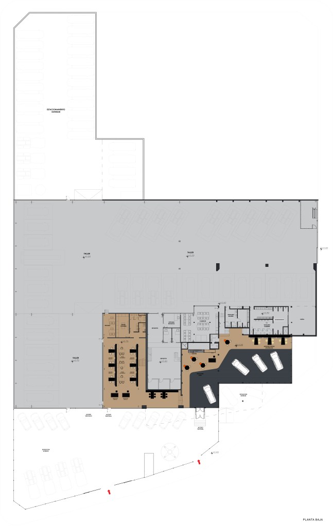
El plan de la obra se organizó en tres etapas para atender las necesidades operativas de la concesionaria, sin interrumpir las tareas de atención al público, en cuanto a lo comercial, administrativo y servicio de mantenimiento de vehículos.
Primero se construyó la nave principal adosada al edificio existente para la ampliación del taller y el nuevo sector de oficinas.
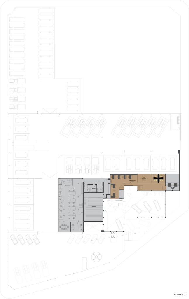
En la etapa 2 se construyó el edificio de oficinas interno de tres plantas y la conexión al edificio existente. En la última etapa se realizaron trabajos de reestructuración y redistribución del área administrativa y renovación del sector de showroom, área de acceso y ventas.
El edificio se remodeló con la impronta de la marca, que define una arquitectura simple con un bloque oscuro consolidado por debajo de un alero que se apoya sobre la construcción existente, como remate de la fachada. Se adosa un nuevo bloque para expansión del área de taller y oficinas, implementando una reorganización de distribución interna total.











